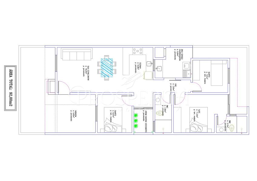
Área Construída: 92 m²

Terreno: 126 m² - Frente 7x18

* Sala de Estar com pé direito mais alto

* Sala de Jantar e Sala de TV integradas 

* Cozinha;

* Lavanderia;

* 1 Suíte com porta janela para melhor ventilação e iluminação;

* 2 quartos;

*Banheiro Social

* Churrasqueira  

* Garagem coberta

Observações:

– Excelente padrão de acabamento com porcelanato, gesso rebaixado na sala, laminado nos quartos.

– Jardim na frente da casa pronto e grama plantada 

- Textura projetada em toda a casa e muros internos

– Lavanderia 

– Voltagem 110 ou 220 - pronta a fiação para o cliente escolher por tomada individual a voltagem preferida.

– Espaço livre no Corredor Lateral e fundos, com calçada e gramado

Condomínio com portaria 24hs, salão de festas equipado e com ar condicionado, 2 playground, espaço livre para caminhadas, sistema de câmeras (em implantação), portão automatizado para moradores, portão automatizado de serviço. 

Imóvel em Construção - Previsão de conclusão Março/26

Aceita permutas e veículos

✅✅✅AGENDE AGORA SUA VISITA✅✅✅

✅VALOR  R$495.000,00 - Financiável✅


Guarapuava - Boqueirão

CASA EM FASE DE CONSTRUÇÃO

3 dormitórios (1 suíte)

1 vaga (Privativa)

2 banheiros

92,00 m² de área privativa

126,00 m² de área total

126,00 m² - área do terreno

R$ 495.000,00

  aceita permuta aceita financiamento aceita veículo
Mais Informações via WhatsApp

Os preços, disponibilidades e condições de pagamento poderão ser alterados sem prévia comunicação.